山東增利來橋架設備有限公司 - 豐富的電纜橋架生產經驗
咨詢電話
138-6400-5123
公司電話 :0531-85766589
廠址:山東省德州市平原縣復興南路與晉德街交叉口東50米
文章來源:濟南電纜橋架廠家批發 作者:電纜橋架廠家 發布時間:2018-10-27 09:50:14 瀏覽次數:0
濃縮機是一種連續工作的濃縮和澄清設備,它主要用于濕式選礦作業中精、尾礦漿的濃縮,也廣泛用于煤炭、鋼鐵、化工、建材、水源、污水處理等含固料漿的濃縮和凈化。濃縮機橋架結構對濃縮機的處理效果起著至關重要的作用。對于濃縮機的結構設計,目前在國內主要依據經驗法和類比法。對于同一類型的濃縮機,其濟南橋架結構基本一致,對于不同的給定條件,例如設備質量、跨度等,可以通過ANSYS進行優化設計。根據有限元分析結果,從選材和改進結構入手來優化濃縮機橋架結構,可為改善橋架受力狀況、降低橋架質量提供科學的理論依據,也可為同類型濃縮機橋架的優化設計提供參考。
文章以NXZ-24中心液壓傳動濃縮機為例,采用有限元分析軟件ANSYS優化模塊對中心傳動式濃縮機橋架進行優化設計,并把優化設計結果與傳統設計的結果進行比較,以期在滿足設計要求的前提下達到優化橋架結構和減輕橋架質量的目的。
1 濃縮機橋架傳統設計
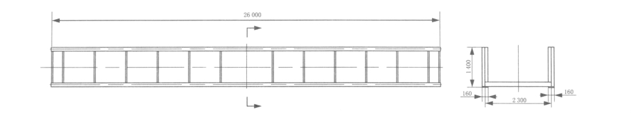
在NXZ-24濃縮機設計中,與濟南橋架有關的參數有濃縮池直徑 (24 m)、橋架承重 (15 t)、橋架長度 (26 m)。在傳統設計中,橋架采用經驗法和類比法設計,圖紙用AutoCAD繪制。橋架的主要尺寸如圖1所示。

圖1 NXZ-24濃縮機橋架結構圖
2 濃縮機橋架參數化有限元模型的建立
濟南橋架設計完成后,作相應的簡化處理 (簡化后的有限元模型見圖2),采用ANSYS參數優化設計語言APDL對濃縮機橋架進行有限元分析。

圖2 簡化后的濃縮機橋架有限元模型
(1)單元類型的選擇。由于濟南橋架采用對稱結構,為了分析方便,取橋架的一半作為橋架的簡化模型。選用單元類型為三維殼單元SHELL63,單元元素由4個節點組合而成,每個節點具有X、Y、Z位移方向及X、Y、Z旋轉方向的6個自由度。該單元能較為真實地反應橋架結構的實際承載狀況。
(2)實常數的輸入。濃縮機橋架材質為Q235-A鋼。主要實常數分別為:彈性模量E=2.1×105 MPa,泊松比μ=0.3。
(3)網格的劃分。橋架結構幾何模型采用自由網格劃分,網格劃分的精度能夠保證求解結果盡量精確。整個模型劃分的單元總數為1 598個,節點數為1 716個。
3 有限元優化設計
3.1 設計變量及目標函數的選取
對于給定跨度的濃縮機來說,其橋架結構的優化設計選取橋架質量為設計目標,目標函數就是使橋架在滿足各項條件的情況下質量最輕。由于橋架采用相同的Q235-A材料,只有一種密度,因此橋架的質量僅與其體積有關,故取體積最小為目標函數。
3.2 設計變量的選取
邊界約束規定了設計變量的取值范圍,對于濃縮機橋架的截面結構參數,考慮實際常用材料及安裝發貨條件,上下翼板厚度取值范圍設定為8~16 mm,腹板高度取值范圍設定為800~1 400 mm,腹板厚度取值范圍設定為8~16 mm。
3.3 狀態變量的選取
為了保證設計滿足使用要求,狀態變量取兩個,即應力約束和位移約束:
(1)應力約束。濟南橋架結構的最大應力必須要小于所用材料的許用應力。對于拉、彎應力,有[σ]≤[σI] =176 MPa;對于剪應力,有[τ]≤[τJ] =100 MPa[3]。
(2)位移約束。橋架結構的最大撓度必須小于規定的值。根據實際經驗,橋架的撓度取橋架長度的1.5/1 000~2/1 000。
將求解的各節點處應力值和Y方向撓度值按降序排列,提取最大值,并賦給相應的參數作為狀態變量,將滿足條件下的總體積最小作為目標函數,生成一個用參數定義模型并指定設計變量、狀態變量和目標函數的分析文件,由這個文件可以自動生成優化循環文件,用來進行優化循環迭代。選擇一階優化方法,對橋架結構進行優化設計,通過31次迭代,在26步時為滿足條件的最優值。
4 優化設計結果分析
從最優化結果來看,雖然體積最小 (即質量最輕),翼板板厚8.9 mm,立板板厚8.4 mm,翼板板厚可圓整為9 mm,但板厚規格不常用,因此可以選擇第六步的翼板板厚10 mm、立板板厚8.4 mm材料規格,這個接近常用規格,而體積與最優化結果相差不大。因此,濟南橋架上下翼板厚度取10 mm,腹板高度取1 320 mm,腹板厚度取8 mm。腹板按預留上拱度放樣下料后,余料可以用于橋架立筋板和濃縮機的刮泥板等零件,因此材料利用率比較高。
與傳統設計相比,優化后的橋架質量減輕了18%。橋架自重和加載后撓度為44 mm,最大應力為94.1 MPa,橋架的剛度和強度均可滿足設計要求。圖3為優化后的橋架靜剛度變形云圖。

圖3 優化后的橋架靜剛度變形云圖
5 結語
濟南橋架在工程實踐中,由于某些鋼結構件在設計過程中沒有設計規范可供參考,設計人員僅能依據經驗法和類比法進行設計,為保證設計要求,結構一般偏重,耗材比較多。因此,在設計過程中參照有限元分析優化中的優化數據,根據結構的受力狀況,合理選擇材料規格,可在滿足設計要求的前提下,盡可能降低材料質量,節省成本。因此,將傳統設計與有限元優化設計相結合的方法不失為非標產品結構設計的一種有益嘗試。
山東電纜橋架的施工工藝是怎樣的
1、工藝流程 彈線定位膨脹螺栓安裝立柱、吊支架和托臂安裝電纜橋架安裝電纜橋架接地 2、彈線定位 根據設計圖紙確定進出線、盒、箱、柜等電氣器具的安裝位置,從始端至終端找好...
TIME:2024-06-29 18:13:12 KEY:山東電纜橋架